Чудо-особняк от Йохена Шпехта

Наступает время, когда у хозяев появляется необходимость увеличить площадь дома или перестроить фасад уже имеющегося строения. Для решения этой проблемы можно построить новое здание, не повредив старой постройке. Этим архитектурным методом часто пользуется австрийский архитектор Йохен Шпехт.

В Австрии есть старинный городок Дорнбирн. Он является признанным лидером по величественности архитектуры страны и особенно славится многовековыми особняками, построенными на фоне живописных альпийских предгорий. Недавно список достопримечательностей Дорнбирна пополнился домом необычной постройки. Он отличается четко очерченным фасадом, который будто вырастает из стоящего рядом холма. Самое удивительное кроется внутри пусть и оригинального, но все же современного здания: за стенами этого дома располагается старинная постройка.

Огромные окна в виде экранов прямоугольной формы позволяют наблюдать за жизнью владельцев дома. Это единственная современная черта стен здания. При более пристальном взгляде на новую постройку можно заметить, что весь ее внешний дизайн направлен на то, чтобы подчеркнуть индивидуальность исторического здания. Ведь современная архитектура не предполагает строительства комфортабельного сооружения в виде невзрачной коробки с обычной крышей двухскатного плана. Просто силуэт нового строения словно под копирку повторяет контур стен старого особняка.

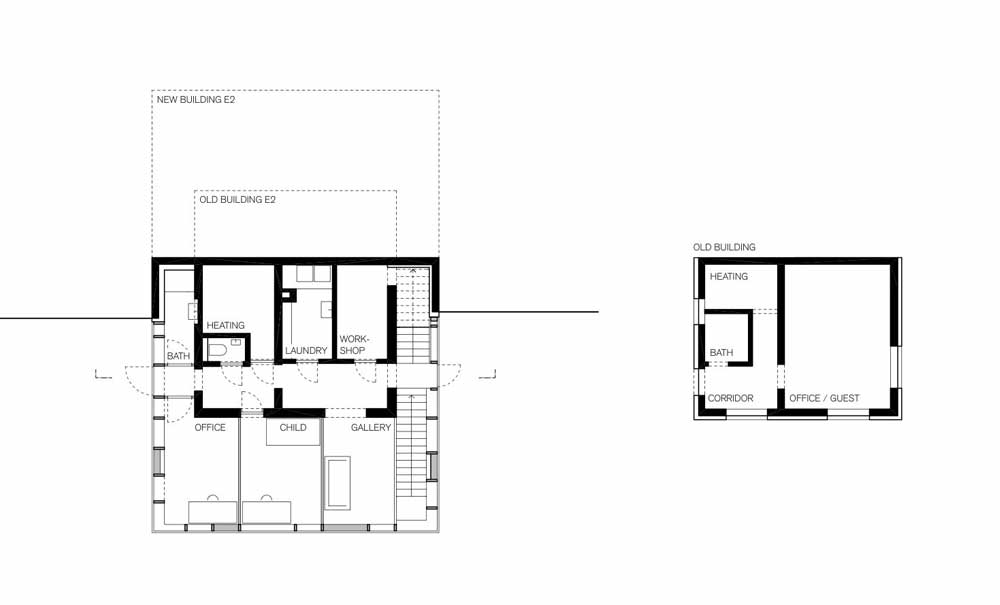
Этот дом был возведен в середине ХХ века, имел небольшие размеры, высокий фундамент и простые лаконичные линии. Он точно так же возникал из склона горы. Его размеры и дизайн полностью устраивали владельцев. Но в начале XXI века было решено перестроить его с сохранением кладки старых стен. По решению архитектора Йохена Шпехта размеры дома были увеличены в длину на четыре, а в ширину – на пятнадцать метров за счет создания новых внешних стен. Для этого был сооружен новый фундамент из бетона. Здание, оказавшееся внутри, стало отправной точкой создания новой планировки интерьера.

Для строительства внешнего дома использовались зрительно невесомые материалы. Это тонкие панели из дерева, воздушный алюминий и прозрачное стекло. Все это является контрастом монументальной постройки, находящейся внутри. Старый дом будто цементирует всю конструкцию и может сохраниться в неизменном состоянии длительное время. Этому способствует современная внешняя оболочка.

Между двумя фасадами имеется свободное пространство для создания лестничных маршей или небольших современных комнат. Лестничные пролеты ограждены прочной ажурной сеткой из стали. Это добавляет дизайну помещения нотку индустриального стиля.

Внутреннюю часть стен из прочного кирпича сначала зачистили, затем вновь заштукатурили и покрасили в пронзительно белый цвет. Оборудование в доме было снято, а перегородки снесли. Оконные проемы старого здания стали дополнительными проходами, а кухонное окно – частью интерьерного проема. При этом старое здание смотрится внутри нового дома закрытой постройкой. Это подчеркивается воздушной вешней оболочкой. Огромные разноформатные окна нового здания создают своеобразный рисунок на фасаде.

Сам интерьер и размещение комнат ассоциируются с архитектурой древнего Египта. Эти бесконечные ведущие в поднебесье лестницы, длинные пролеты и марши, внутренняя часть помещений, в которую не очень просто попасть. Этот дом можно изучать бесконечно. Кажется, открытия поджидают вас за каждым углом. Исторический замысел планировки подкрепляется минимализмом форм и величественностью, исходящими от использованных материалов. Ведь с внутренней стороны новое здание, так же как и старое, отделано деревянной доской. Натуральность цвета и ярко выраженная текстура поддерживаются мебелью. Все стеллажи и шкафы, кухонная мебель и даже места хранения, расположенные под лестницей, сделаны из светлого дерева.

Светильники представляют собой цилиндры, направленные прямо в потолок. Приватные помещения пронизаны проводкой, идущей прямо по стенам. Пол представляет собой хорошо обработанную цементную стяжку, сделанную во время реконструкции из современных материалов

Лаконичность дизайна обусловлена не столько тягой архитектора и заказчика к стилю минимализма, сколько желанием подчеркнуть красоту окружающей природы, открывающейся из окон дома. От потрясающих пейзажей Рейна и Боденского озеро посетителей невозможно отвлечь

Большой размер окон побудил проектировщиков хорошо утеплить здание. Предпочтение было отдано новейшим материалам. Нужный режим температуры поддерживается радиаторами и специальным насосом, а с помощью геотермальных зондов можно в случае необходимости регулировать температуру в сильную жару